Zum Hauptinhalt springen

Baustelle Lernräume

Projekt

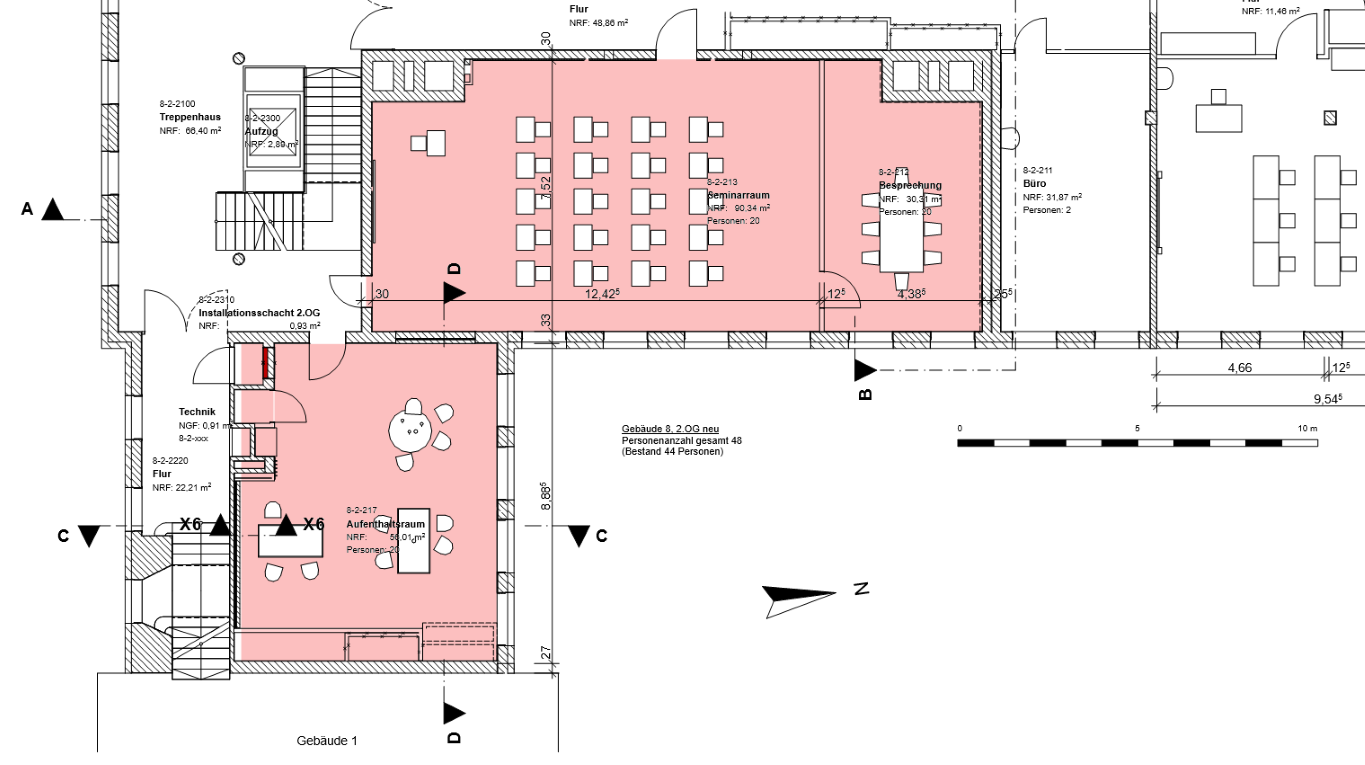
Umbau Gebäude 8 - 2.OG

Leistung

LPH 3-8

Ausführungszeitraum

2025

Beschreibung

An der Hochschule hat eine umfassende bauliche Maßnahme begonnen, die nicht nur das Erscheinungsbild, sondern auch die funktionale Nutzung der Räumlichkeiten zukünftig verändern wird. Ziel ist es, den Grundriss zeitgemäß neu zu organisieren und dabei die technische Gebäudeausstattung grundlegend zu sanieren.